дом в апрелевке

«Уникальность этого проекта в том, что мы взяли за основу проект классического каркасного дома, но построили его с полностью монолитным фундаментом, стенами из пеноблока и межкомнатными перегородками из кирпича.»
Роман Романов, архитектор
Площадь
Количество этажей
Статус:
246,3 м2
2 этажа
Чистовая отделка
История проекта
Ко мне обратилась семейная пара, Ольга и Владимир. Во время карантина они перешли полностью на удаленную работу и жили в этот период на своей даче. Поняв преимущества жизни за городом они сперва захотели перестроить свой свой дачный дом, но позже нашли участок с живописным видом на лес в своем поселке и решили начать строительство с нуля.
Пожелания клиентов
Ольгу и Владимира привлёк популярный проект дома Фахверк с панорамным остеклением. Но стандартный проект предполагает, что это деревянный дом, с заполнением по технологии каркасного домостроения, а это не удовлетворяло запрос клиентов в надежности, ведь каркасные дома не достаточно тёплые и долговечные.
Решение
Мы же пошли другим путем, взяв из проекта лучшее — дом просторный, с панорамным остеклением, все это мы сохранили, но построили его на монолитном фундаменте, сделали монолитную межэтажную плиту перекрытия, в качестве основы для стен использовали 12 монолитных колон. Стены сделали из пеноблока, межкомнатные перегородки из кирпича.
Основная задача
Постоить крепкий и тёплый дом на века, что бы было достаточно места и могли приезжать в гости сын с семьей и друзья.
Проектирование
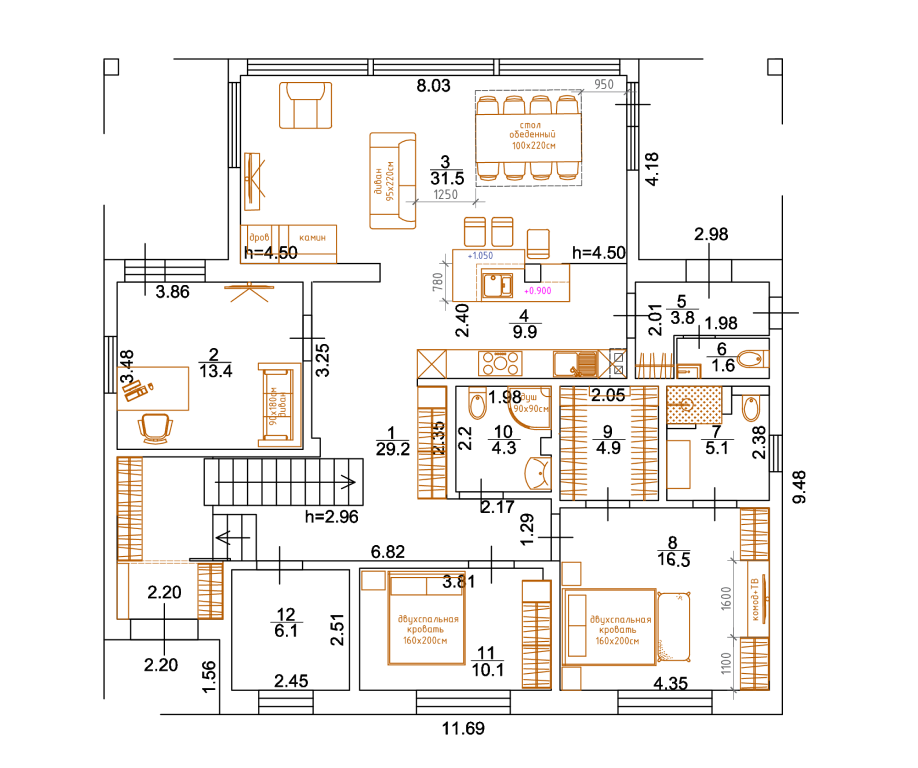
план Расстановки мебели
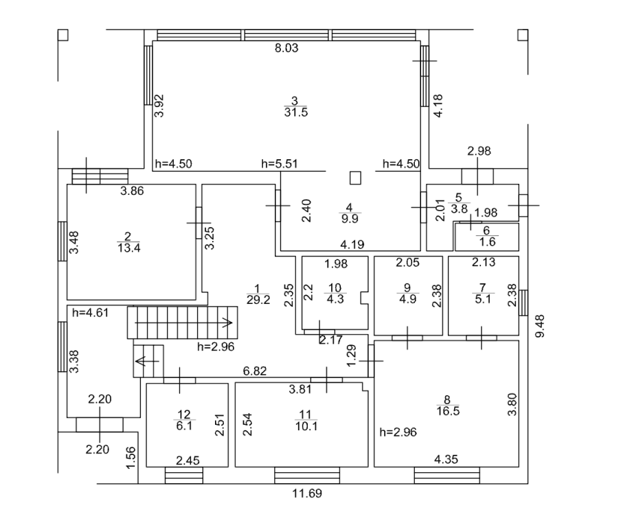
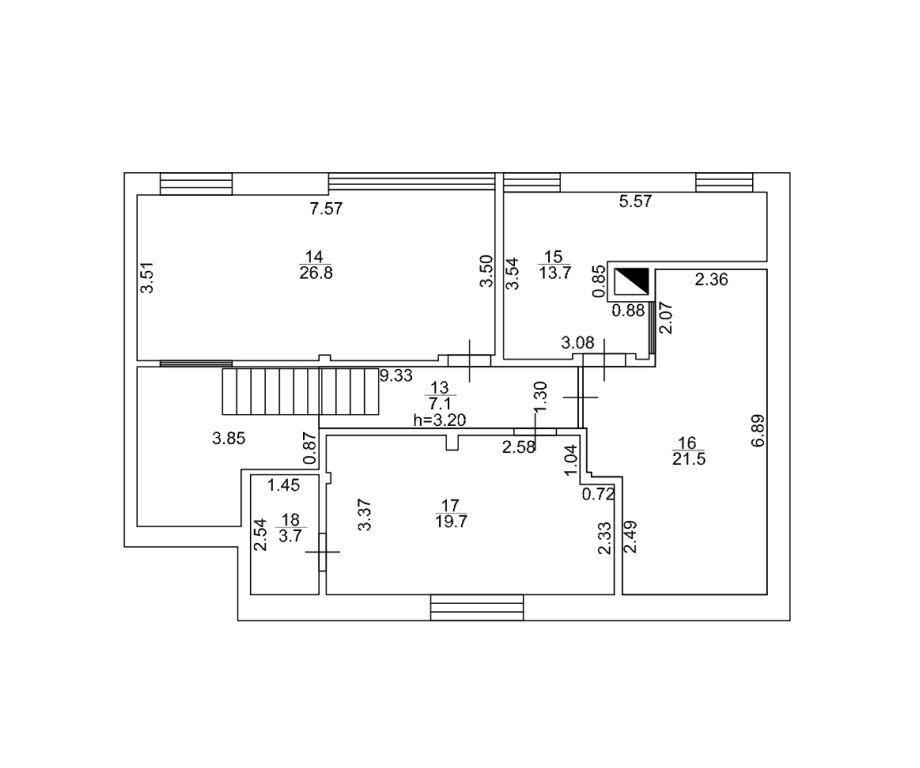
Поэтажный план
1 этаж
143,6 м2
1 этаж
143,6 м2
1 этаж
143,6 м2
1 этаж
143,6 м2
СТРОИТЕЛЬСТВО
На данный момент выполнены следующие этапы работы:
  • демонтаж старого строения
  • расчистка участка
  • геология грунтов
  • устройство котлована
  • заливка фундаментной плиты
  • подведение коммуникаций
  • возведение внешних стен
  • устройство кровли
  • остекление
  • возведение межкомнатных перегородок
  • черновая отделка
  • отопление, водоснабжение
Предстоящие работы:
  • чистовая отделка
  • ландшафтный дизайн
Объект будет сдан в августе 2024 года, с полной отделкой, меблированный и с законченным ландшафтным дизайном.
резюме проекта
«В итоге получили тёплый и крепкий дом, в котором семья сможет жить долгие годы без вложения денег в капитальный ремонт, ведь мы строили дом не для того, что бы его обслуживать, а для того, что бы наслаждаться размеренной жизнью, и не вкладывать в него силы и средства.»
Роман Романов, архитектор
Создадим дом вашей мечты вместе?
отправить заявку
Оставьте ваши контакты и я свяжусь с вами для бесплатной консультации